Villa à vendre à Cascada de Camojan, Marbella Golden Mile Villa à vendre à Cascada de Camojan, Marbella Golden Mile Villa à vendre à Cascada de Camojan, Marbella Golden Mile Villa à vendre à Cascada de Camojan, Marbella Golden Mile Villa à vendre à Cascada de Camojan, Marbella Golden Mile Villa à vendre à Cascada de Camojan, Marbella Golden Mile
7.800.000 €
ref:LH836
6 chambres
7 salles de bain
708m² construit
137m² terrasse
1.177m² terrain

Villa de style moderne, toute neuve, vue mer, à Marbella Golden Mile

Villa de luxe moderne, flambant neuve, avec de belles vues panoramiques, à Cascada de Camoján, sur le Golden Mile de Marbella. Emplacement privilégié dans un quartier résidentiel fermé et sécurisé de villas de luxe, l’un des plus exclusifs de Marbella.

Située dans une zone surélevée, la propriété offre de superbes vues panoramiques sur les montagnes, la côte et la mer Méditerranée. De plus, elle est entourée d’une végétation luxuriante qui assure une totale intimité.

La villa présente un design unique, avec des matériaux qui se combinent parfaitement et s’intègrent à son environnement. Elle dispose de grands espaces intérieurs et extérieurs, idéaux aussi bien pour la vie quotidienne que pour célébrer des fêtes ou des réunions de famille.

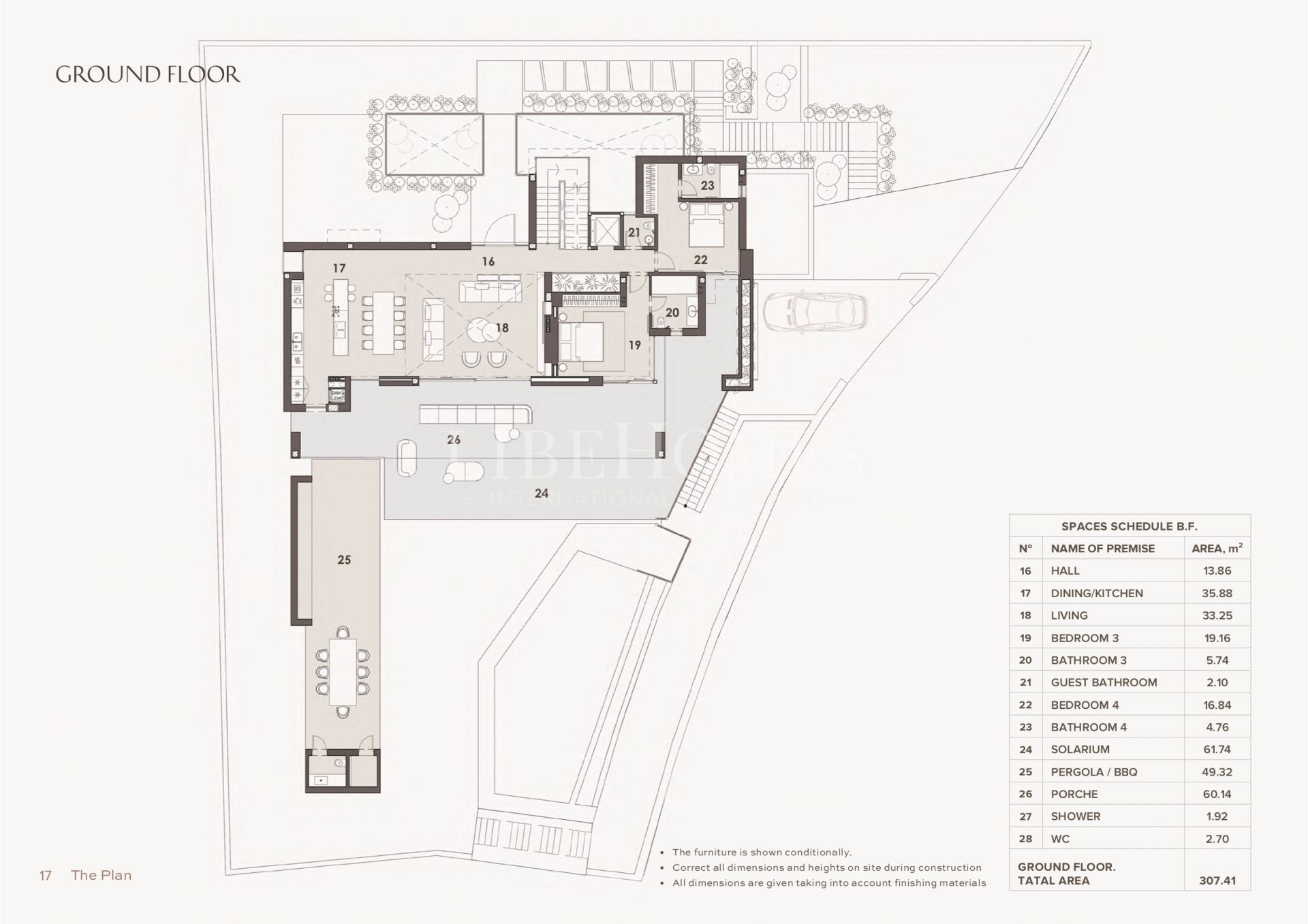
La maison est spacieuse. Elle dispose de 6 chambres, 7 salles de bains, chambre de service avec salle de bain et terrasses couvertes.

À l’extérieur, le grand espace barbecue et le grand solarium sont parfaits pour recevoir des invités, pour des dîners, des fêtes ou simplement pour profiter en famille. La terrasse à côté de la piscine est idéale pour se détendre et bronzer lors des journées chaudes.

La communauté Cascada de Camoján offre une variété de services exclusifs aux propriétaires, tels que l’entretien et le jardinage, surveillance de sécurité 24 heures avec barrière d’entrée, des caméras de sécurité et service de conciergerie 24 heures.

LA PROPRIÉTÉ COMPREND :
Piscine extérieure
Terrasses panoramiques
Solarium
Jardin privé
Climatisation
Chauffage au sol
Garage (4 voitures)

SERVICES À PROXIMITÉ:
Restaurants de luxe (Vovem, Cabaña Nagüeles, Villa Tiberio …)
Centre commercial La Cañada.
Magasins de luxe
Clinique Buchinger
Supermarchés (Supersol, Lidl …)

FRAIS ET IMPÔTS :
Le prix indiqué ne comprend pas les frais et les impôts liés à l’acquisition, détaillés ci-dessous :
• Impôt sur les Actes Juridiques Documentés (Impuesto de Transmisiones Patrimoniales, ITP) : 7 % du prix d’achat.
• Honoraires de notaire : voir le barème officiel fixé à l’annexe I du décret royal 1426/1989 du 17 novembre.
• Frais d’inscription au registre foncier : voir le barème officiel fixé à l’annexe I du décret royal 1427/1989 du 17 novembre.
• Frais de gestion (services administratifs) : environ 600 € (TVA incluse).
• Honoraires de l’agence du vendeur : inclus dans le prix affiché.

Villa de style moderne, toute neuve, vue mer, à Marbella Golden Mile
Villa de style moderne, toute neuve, vue mer, à Marbella Golden Mile
Villa de style moderne, toute neuve, vue mer, à Marbella Golden Mile
Villa de style moderne, toute neuve, vue mer, à Marbella Golden Mile
Villa de style moderne, toute neuve, vue mer, à Marbella Golden Mile
Villa de style moderne, toute neuve, vue mer, à Marbella Golden Mile
Villa de style moderne, toute neuve, vue mer, à Marbella Golden Mile
Villa de style moderne, toute neuve, vue mer, à Marbella Golden Mile
Villa de style moderne, toute neuve, vue mer, à Marbella Golden Mile
Villa de style moderne, toute neuve, vue mer, à Marbella Golden Mile
Villa de style moderne, toute neuve, vue mer, à Marbella Golden Mile
Villa de style moderne, toute neuve, vue mer, à Marbella Golden Mile
Villa de style moderne, toute neuve, vue mer, à Marbella Golden Mile
Villa de style moderne, toute neuve, vue mer, à Marbella Golden Mile
Villa de style moderne, toute neuve, vue mer, à Marbella Golden Mile
Villa de style moderne, toute neuve, vue mer, à Marbella Golden Mile
Villa de style moderne, toute neuve, vue mer, à Marbella Golden Mile
Villa de style moderne, toute neuve, vue mer, à Marbella Golden Mile
Villa de style moderne, toute neuve, vue mer, à Marbella Golden Mile
Villa de style moderne, toute neuve, vue mer, à Marbella Golden Mile
Villa de style moderne, toute neuve, vue mer, à Marbella Golden Mile
Villa de style moderne, toute neuve, vue mer, à Marbella Golden Mile
Villa de style moderne, toute neuve, vue mer, à Marbella Golden Mile
Villa de style moderne, toute neuve, vue mer, à Marbella Golden Mile
Villa de style moderne, toute neuve, vue mer, à Marbella Golden Mile
Villa de style moderne, toute neuve, vue mer, à Marbella Golden Mile
Villa de style moderne, toute neuve, vue mer, à Marbella Golden Mile
Villa de style moderne, toute neuve, vue mer, à Marbella Golden Mile
Villa de style moderne, toute neuve, vue mer, à Marbella Golden Mile
Villa de style moderne, toute neuve, vue mer, à Marbella Golden Mile
Villa de style moderne, toute neuve, vue mer, à Marbella Golden Mile
Villa de style moderne, toute neuve, vue mer, à Marbella Golden Mile
Villa de style moderne, toute neuve, vue mer, à Marbella Golden Mile
Villa de style moderne, toute neuve, vue mer, à Marbella Golden Mile
Villa de style moderne, toute neuve, vue mer, à Marbella Golden Mile
toutes les images

Caractéristiques

  • Cuisine entièrement adaptée
  • Près de la ville
  • Appartement d'invités
  • Pièce de service
  • Cheminée
  • Plancher en marbre
  • Jacuzzi
  • Sauna
  • Cave
  • Chambre d'invités
  • Entrepôt
  • Salle de gym
  • Alarme
  • Solarium
  • Entrée sécurizé
  • Salle à manger
  • Barbecue
  • Service de sécurité 24h
  • Toilette d'invités
  • Terrasse privée
  • Salle de séjour
  • Chambre de études
  • Appartement séparé
  • Vue mer
  • Vue campagne
  • Vue montagne
  • Piscine intérieure
  • Système domotique
  • Buanderie
  • Résidence fermée
  • Climatisation
  • Vue panoramique
  • Salle de cinéma
  • Chauffage par le sol (partiel)
  • Bain de vapeur
  • Terrasse découverte
  • Salle de jeux
  • Salle à manger séparée
  • Station thermale - SPA
  • Bain de vapeur
  • Excellent état
  • Vue urbaine

Propriété à Cascada de Camojan, Marbella Golden Mile

Manolo Alarcón

Manolo Alarcón

Managing Partner

Formulaire de contact

We process your personal data in accordance with the General Data Protection Regulation (G.D.P.R.) and our Data Protection Policy.

Propriétés similaires